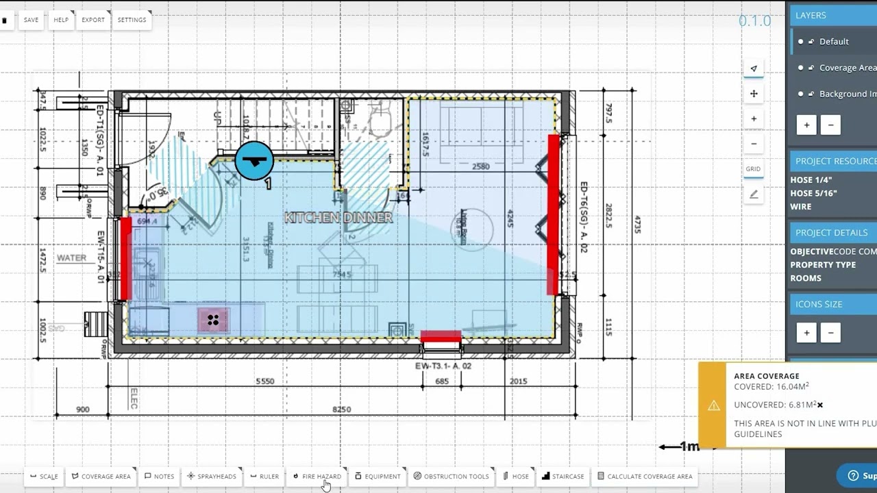
Layout plans

Automist design specification

How to configure Automist for your application?

The first thing to establish is what is the objective of your Automatic Water Fire Suppression System (AWFSS) installation: 

  1. Is required by law to ensure a property meets building regulations after a renovation, or perhaps because you need building control sign off to sell your house? For example, you are a homeowner and need a compliance certificate after a loft conversion with an open plan downstairs. 
     
  2. Is it an elective fire safety upgrade whereby you would like to improve the fire safety of the building, but the installation is not required by law? For example, you are a Landlord that has already met their minimum statutory requirements but would like to install additional life safety measures for greater peace of mind. This example does not require building control sign off because you enhance an already safe building.
     
  3. Or is it driven by meeting the requirements of the Regulatory Reform (Fire Safety) Order 2005 (RRFSO)? The responsible person in non-domestic premises must ensure the fire safety of all employed there and that the premises are safe for any other people who may be on-site or in the immediate vicinity. For example, you are a Landlord and need to close a fire risk assessment action? Or mitigate the risk identified from a Personal Emergency Evacuation Plan (PEEP) - an individual escape plan for someone who may not be able to quickly reach a place of safety unaided in the event of an emergency. 


Then submit your layout to your local Authorised Installer, who can provide you with an Automist installation design and a proposal which you can verify with your Approval Body before starting. Our installers have a good knowledge of how to achieve the most desirable compliant open-plan layouts and even work with fire engineers to solve fire conformance problems.